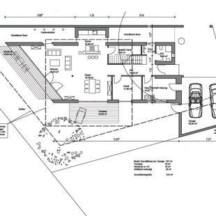
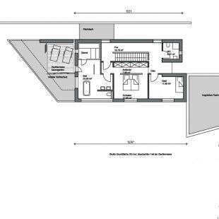
efh-planung in soest
Auf einem Grundstück mit ungewöhnlichem Zuschnitt entstand die Planung für ein zweigeschossiges Design-Einfamilienhaus in Citynähe. Ein hinter einer straßenbegleitenden Backsteinmauer langgestreckter Riegel trennt die Straße vom Garten und öffnet sich spektakulär zur schrägverlaufenden Grundstücksgrenze.
